$2,350

$50

335 Wheat Boom Drive 1809, Oakville, ON L6H 7Y1

1010 - JM Joshua Meadows, Oakville,

| | | 699 sq.ft. | Year Built: New |

Properties with this icon are courtesy of TRREB.

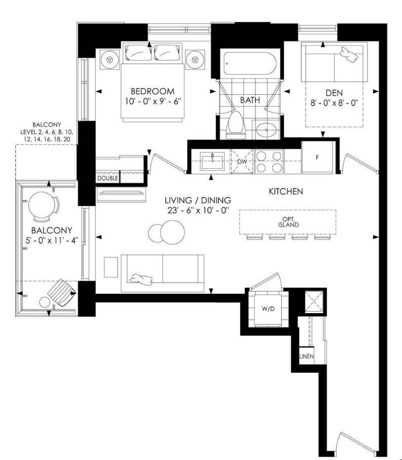
Discover the Oakvillage Phase 2 corner unit, a stunning 1 Bedroom + Den home in a sought-after Oakville location. This bright and spacious open-concept unit features 9-foot ceilings, premium laminate flooring, and an abundance of natural light. The versatile den with window, complete with a door for privacy, is large enough to function as a second bedroom. The modern kitchen is equipped with stainless steel appliances, quartz countertops, and a matching quartz island. The elegant bathroom includes smart home features such as keyless entry.Blinds adding to the home's charm. Ideal for commuters, the unit offers convenient access to major highways and the GO train. Rent includes high-speed Internet and an underground parking spot. Residents can also enjoy fantastic amenities like a gym, party room, rooftop patio, and visitor parking.

Property Info
MLS®: W12838942
Listing Courtesy of BAY STREET GROUP INC.
Total Bedrooms 2
Total Bathrooms 1
Basement 1
Floor Space 600-699 sq.ft.
Style Apartment
Last Updated 2026-03-03
Property Type Condo
Listed Price $2,350
Year Built New
Rooms
More Details
Exterior Finish Concrete
Parking Cover 1
Parking Total 1
Summary
    Location and General Information
  • HoldoverDays: 60
  • Architectural Style: Apartment
  • Property Type: Residential Condo & Other
  • Property Sub Type: Condo Apartment
  • GarageType: Underground
  • Directions: Dundas/Trafalgar
  • Parking
  • Parking Features: Underground
  • ParkingSpaces: 1
  • Parking Total: 1
Interior and Exterior Features
    Bathrooms Information
  • WashroomsType1: 1
  • WashroomsType1Level: Flat
  • Bedrooms Information
  • BedroomsAboveGrade: 1
  • BedroomsBelowGrade: 1
  • Interior Features
  • Interior Features: Carpet Free, Intercom
  • Basement: None
  • Cooling: Central Air
  • HeatSource: Gas
  • HeatType: Forced Air
  • LaundryLevel: Main Level
  • Exterior Features
  • ConstructionMaterials: Concrete
Property
    Utilities
    Property and Assessments
    Lot Information
    Others
  • PropertyFeatures: Public Transit, Park, Hospital, Electric Car Charger, Clear View, Greenbelt/Conservation
Sold History
MAP & Nearby Facilities (The data is not provided by TRREB)
Map
Nearby Facilities
Public Transit ({{ nearByFacilities.transits? nearByFacilities.transits.length:0 }})
SuperMarket ({{ nearByFacilities.supermarkets? nearByFacilities.supermarkets.length:0 }})
Hospital ({{ nearByFacilities.hospitals? nearByFacilities.hospitals.length:0 }})
Other ({{ nearByFacilities.pois? nearByFacilities.pois.length:0 }})
School Catchments
School Name Type Grades Catchment Distance
{{ item.school_type }} {{ item.school_grades }} {{ item.is_catchment? 'In Catchment': '' }} {{ item.distance }}
City Introduction
Nearby Similar Active listings
Nearby Open House listings
Nearby Price Reduced listings
Nearby Similar Listings Closed
MLS Listing Browsing History
Obtain More Info
500 word remaining