$3,200

70 Annie Craig Drive 2806, Toronto W06, ON M8V 0C4

Mimico, Toronto,

| | | 899 sq.ft. | Year Built: 0-5 |

Properties with this icon are courtesy of TRREB.

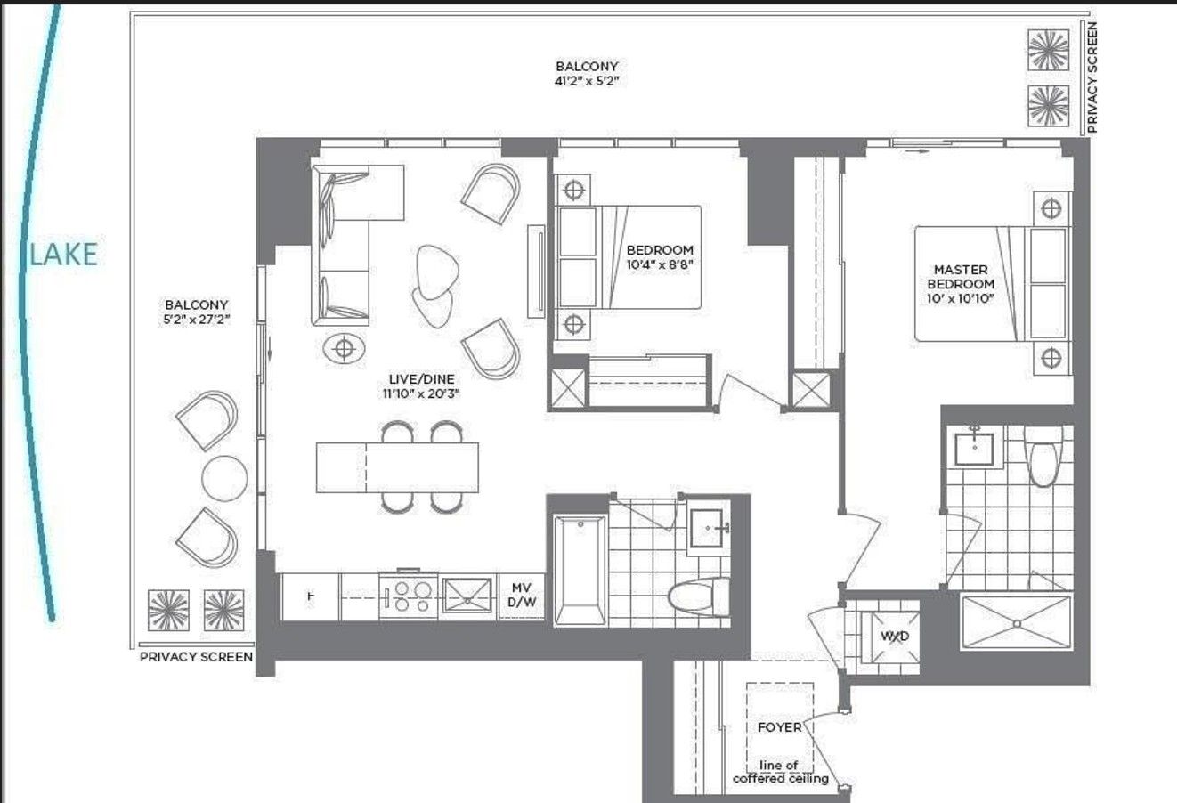
Mattamy's Vita On The Lake! Immaculate And Upgraded Unit With Unobstructed City And Water Views. 9" Ceiling Height 2 Bedroom W/ 2 Full Bathrooms. Bright Light-Filled Space, Modern Kitchen W/ S/S Appliances, Backsplash & Quartz Counters And Balcony. Fitness Rm W/ Yoga Studio & Sauna, Party Rm W/ Bar, Outdoor Pool, Sun Deck, Bbq Area, Guest Suites & 24 Hr Concierge **EXTRAS** S/S Fridge, Stove, Built-In Dishwasher, Built-In Microwave, Stacked Washer & Dryer. Electronic Thermometer. 1 Locker & 1 Parking.

Property Info
MLS®: W12760424
Listing Courtesy of BAY STREET GROUP INC.
Total Bedrooms 2
Total Bathrooms 2
Basement 1
Floor Space 800-899 sq.ft.
Style Apartment
Last Updated 2026-02-05
Property Type Condo
Listed Price $3,200
Year Built 0-5
Rooms
More Details
Exterior Finish Concrete
Parking Cover 1
Parking Total 1
Summary
    Location and General Information
  • HoldoverDays: 90
  • Architectural Style: Apartment
  • Property Type: Residential Condo & Other
  • Property Sub Type: Condo Apartment
  • GarageType: Underground
  • Directions: Parklawn & Lakeshore
  • Parking
  • Parking Features: Underground
  • ParkingSpaces: 1
  • Parking Total: 1
Interior and Exterior Features
    Bathrooms Information
  • WashroomsType1: 2
  • WashroomsType1Level: Main
  • Bedrooms Information
  • BedroomsAboveGrade: 2
  • Interior Features
  • Interior Features: None
  • Basement: None
  • Cooling: Central Air
  • HeatSource: Gas
  • HeatType: Forced Air
  • Exterior Features
  • ConstructionMaterials: Concrete
Property
    Utilities
    Property and Assessments
  • New Construction YN: true
  • Lot Information
    Others
Sold History
MAP & Nearby Facilities (The data is not provided by TRREB)
Map
Nearby Facilities
Public Transit ({{ nearByFacilities.transits? nearByFacilities.transits.length:0 }})
SuperMarket ({{ nearByFacilities.supermarkets? nearByFacilities.supermarkets.length:0 }})
Hospital ({{ nearByFacilities.hospitals? nearByFacilities.hospitals.length:0 }})
Other ({{ nearByFacilities.pois? nearByFacilities.pois.length:0 }})
School Catchments
School Name Type Grades Catchment Distance
{{ item.school_type }} {{ item.school_grades }} {{ item.is_catchment? 'In Catchment': '' }} {{ item.distance }}
City Introduction
Nearby Similar Active listings
Nearby Open House listings
Nearby Price Reduced listings
Nearby Similar Listings Closed
MLS Listing Browsing History
Obtain More Info
500 word remaining