$1,379,000

18 Earlscourt Avenue, Toronto W03, ON M6E 4A6

Corso Italia-Davenport, Toronto,

| | 2,500 平方英尺 |

Properties with this icon are courtesy of TRREB.

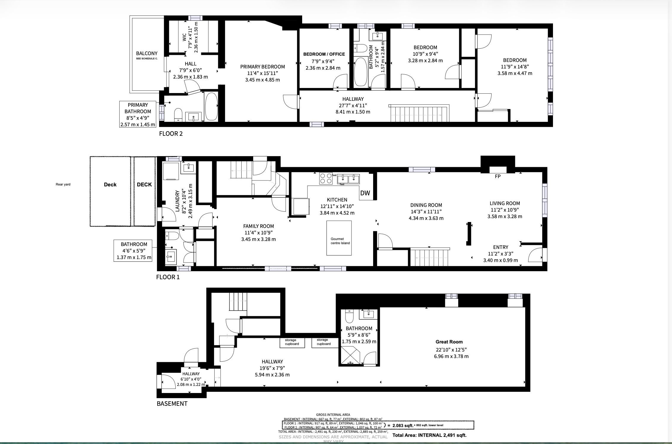
Discover your ideal home in the vibrant heart of Corso Italia, Toronto, just steps from St.Clair. This beautifully renovated, detached 4-bedroom, 4-bathroom residence offers a perfect blend of modern style and functional design. Boasting an open-concept layout, a separate entrance to the finished basement, and a spacious double car garage, this home is truly a versatile canvas for your future. Features include a luxurious master suite with a walk-in closet and 4-piece ensuite, gleaming hardwood floors, elegant crown molding, and energy-efficient LED pot lighting. The chef's kitchen showcases a stone countertop, center island, and modern finishes. Enjoy a private backyard oasis, a dedicated family room, and prime location within walking distance to TTC, schools, shopping, parks, recreation centers, and excellent restaurants. This exceptional property combines sophisticated living with unbeatable convenience

翻译

房屋信息
MLS®: W12920350
上盘公司 RARE REAL ESTATE
卧室 4
洗手间 4
地下室 1
室内面积 2000-2500 平方英尺
土地面积 2304 平方英尺
风格 2-Storey
最后更新 2026-03-25
物业属性 独立屋
挂盘价格 $1,379,000
单位价格 $552/平方英尺
地税额度 $7,684/年
房间信息
更多信息
外部装修
非露天车位 2
供水方式 Municipal
基建 Sewer
详细描述
    位置和一般信息
  • HoldoverDays: 90
  • 建筑样式: 2-Storey
  • 房屋种类: Residential Freehold
  • 房屋子类: Detached
  • DirectionFaces: West
  • GarageType: Detached
  • 路线: St Clair & Dufferin
  • 税收和 HOA 信息
  • 纳税年度: 2025
  • 停车
  • 停车位特点: Lane, Other
  • 停车位总数: 2
内部和外部特点
    洗手间信息
  • WashroomsType1: 1
  • WashroomsType1Level: Second
  • WashroomsType2: 1
  • WashroomsType2Level: Second
  • WashroomsType3: 1
  • WashroomsType3Level: Ground
  • WashroomsType4: 1
  • WashroomsType4Level: Basement
  • 卧室信息
  • BedroomsAboveGrade: 4
  • 内部特点
  • 壁炉总数: 1
  • 内部特点: Auto Garage Door Remote, In-Law Capability, Other, Storage
  • 地下室: Separate Entrance, Finished
  • Cooling: Central Air
  • HeatSource: Gas
  • HeatType: Forced Air
  • LaundryLevel: Main Level
  • 外部特点
  • ConstructionMaterials: Brick
  • 外部特点: Deck, Porch, Privacy
  • 屋顶: Asphalt Rolled
  • 泳池特点: None
房屋
    公共服务
  • 下水道: Sewer
  • 地产及评估
  • 基建详情: Block
  • 地块信息
  • LotSizeUnits: Feet
  • LotDepth: 128
  • LotWidth: 18
  • Others
  • PropertyFeatures: Library, Place Of Worship, Public Transit, School, Fenced Yard, Hospital
销售历史
地图与附近设施
地图
附近概况
公共交通 ({{ nearByFacilities.transits? nearByFacilities.transits.length:0 }})
购物中心 ({{ nearByFacilities.supermarkets? nearByFacilities.supermarkets.length:0 }})
医疗设施 ({{ nearByFacilities.hospitals? nearByFacilities.hospitals.length:0 }})
其他 ({{ nearByFacilities.pois? nearByFacilities.pois.length:0 }})
开放日
2026-03-29 02:00 PM - 04:00 PM
2026-04-04 02:00 PM - 04:00 PM
2026-04-05 02:00 PM - 04:00 PM
附近学区
学校名称 类型 Grades Catchment 距离
{{ item.school_type }} {{ item.school_grades }} {{ item.is_catchment? 'In Catchment': '' }} {{ item.distance }}
贷款计算器
$
$
$
%
%
预计付款

$

每周 双周 半月 每月

城市概况
附近的类似在盘房源
附近的类似Open House房源
附近的投资推荐(降价)房源
附近的类似已成交房源
房源浏览历史记录
获取更多信息
剩余字数500